
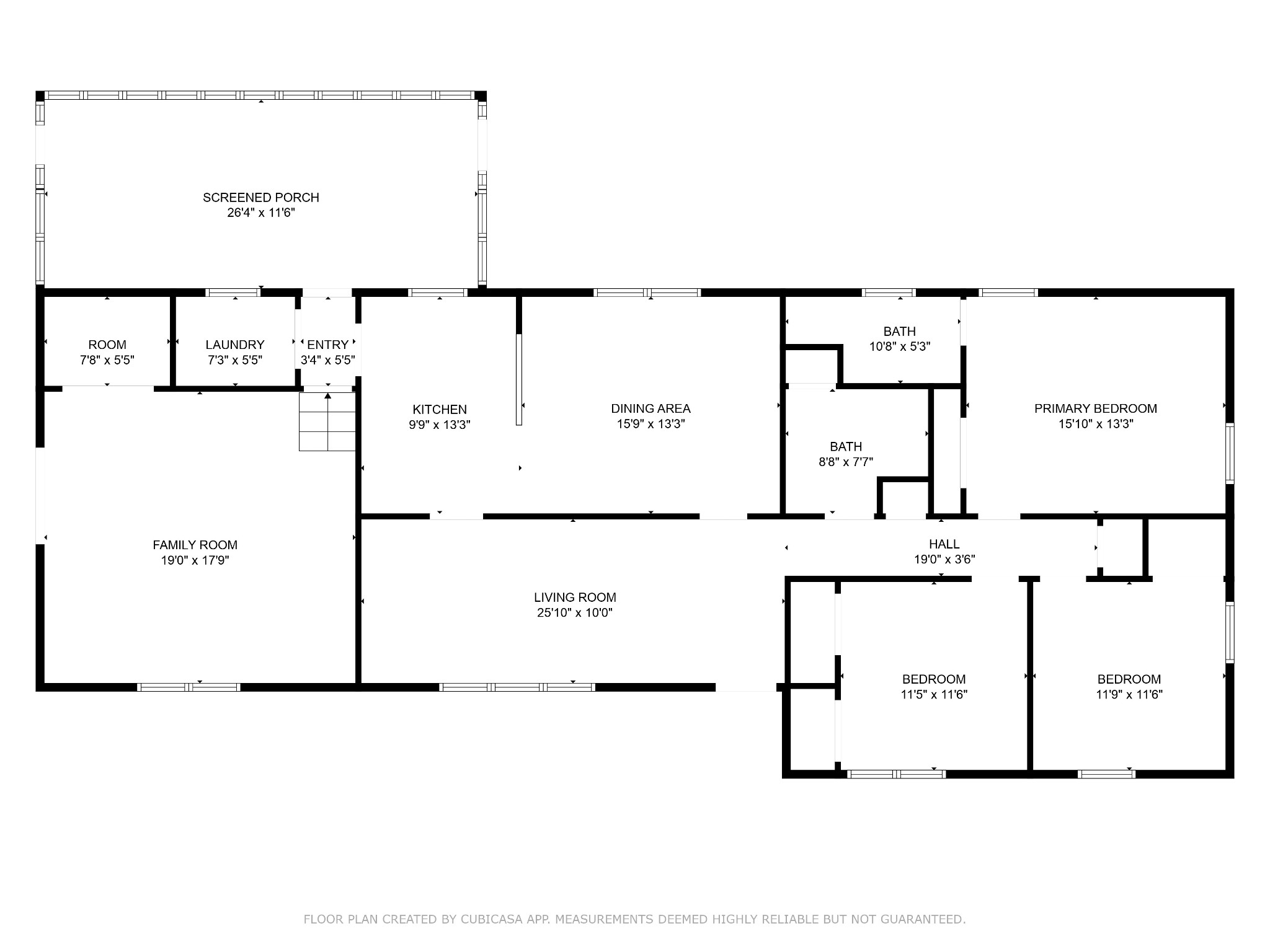
Located in the heart of Smithville, close to all your daily amenities. This house boast 4 bedrooms, 2 full baths with separate living and dining area. Dedicated utility room allows for extra storage and large screened in back porch. There is also a site build storage building on the back of the property. Home recently had new updates to include LVP flooring throughout the house except bathrooms and new paint in all areas of the home, updated windows. This home is convenient to Ascension St. Thomas hospital, Walmart, Tractor Supply and other retail locations. Large front and large back yard. Large wooden post outline where a playset used to set. This is a great house to make your home. With the sq ft, this house has room for everyone including space for an office.
Listed by: Town & Lake Realty, Inc. 6158288396. © 2024 RealTracs MLS (RTMLS). All rights reserved. The data relating to real estate for sale on this web site comes in part from the Internet Data Exchange Program of RTMLS. Real estate listings held by IDX Brokerage firms other than Town & Lake Realty are marked with the Internet Data Exchange logo or the Internet Data Exchange thumbnail logo and detailed information about them includes the name of the listing Brokers. Information provided is deemed reliable but not guaranteed. Properties displayed may be listed or sold by various participants in the MLS; as established by the applicable MLS Governing Documents. Listings courtesy of RealTracs MLS as distributed by MLS GRID. Based on information submitted to the MLS GRID as of Wednesday, October 30th, 2024 at 06:33:08 AM. All data is obtained from various sources and may not have been verified by broker or MLS GRID. Supplied Open House Information is subject to change without notice. All information should be independently reviewed and verified for accuracy. Properties may or may not be listed by the office/agent presenting the information. The listing broker’s offer of compensation is made only to participants of the MLS where the listing is filed.
Data services provided by IDX Broker
| Price: | $328000 |
| Address: | 708 Anthony Ave |
| City: | Smithville |
| County: | Dekalb County, TN |
| State: | Tennessee |
| Zip Code: | 37166 |
| Subdivision: | N/A |
| MLS: | 2689251 |
| Year Built: | 1976 |
| Square Feet: | 2,137 |
| Acres: | 0.63 |
| Lot Square Feet: | 0.63 acres |
| Bedrooms: | 4 |
| Bathrooms: | 2 |